Beschrijving

Op loopafstand van de Dunne Bierkade, met het Huygenspark in de buurt en een goede bereikbaarheid per auto en openbaar vervoer. Vanuit dit dubbele bovenhuis aan het Hofwijckplein is alles binnen handbereik. De woning beschikt over drie slaapkamers, een woon-eetkamer met ensuite en een balkon op het zuid/zuidwesten.

De woning ligt aan een rustig plein met eenrichtingsverkeer. Aan de straatzijde bevindt zich de voordeur met daarachter een eigen opgang en een recent gerenoveerde trap naar de woonverdiepingen.

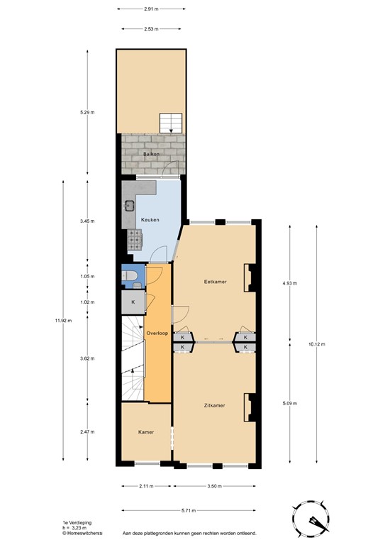
De eerste woonverdieping heeft een overloop met paneeldeuren naar de verschillende vertrekken. De woon- en eetkamer worden van elkaar gescheiden door een ensuite met glas-in-looddeuren en vaste kastruimte. De plafonds van circa 3 meter hoog, de schouwen en de roedeverdeling in de ramen geven de woning een klassiek karakter en zorgen voor veel lichtinval. De woonkamer aan de voorzijde heeft een doorloop naar de zijkamer. De eetkamer aan de achterzijde kijkt uit op de achtergelegen tuinen en heeft een doorloop naar de halfopen keuken.

De keuken is uitgerust met een stenen aanrechtblad, een groot fornuis, een kokendwaterkraan, een vaatwasser en een losse koel-vriescombinatie. Vanuit de keuken is er toegang tot het balkon op het zuid/zuidwesten, een prettige buitenruimte waar je in de zomer van ’s ochtends tot ’s avonds in alle rust kunt zitten.

Op de overloop bevinden zich een apart toilet met fontein, een bergkast en de trap naar de bovenste verdieping.

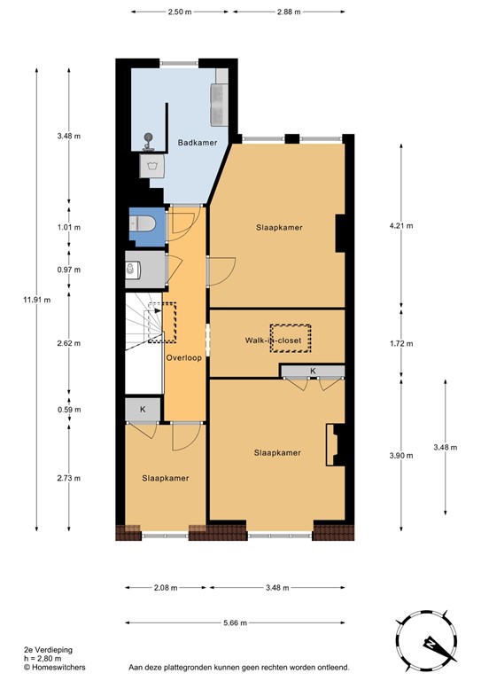
Op de tweede verdieping is een overloop met toegang tot twee kamers aan de voorzijde, beide met vaste kasten, en een kamer aan de achterzijde. Tussen de voor- en achterkamer bevindt zich een inloopkast met daglicht via een dakraam.

De badkamer is voorzien van een inloopdouche, een wastafelmeubel en aansluitingen voor wasmachine en droger. Daarnaast is er op deze verdieping een apart toilet en een bergkast met cv-installatie.

Kortom, een goed gelegen en instapklaar dubbel bovenhuis met behoud van klassieke details, waar comfort en karakter op een prettige manier samenkomen.

Bijzonderheden:
- Gelegen op eigen grond, binnen beschermd stad- dorpsgezicht Stationsbuurt;
- Parkeren met bewoners vergunning;
- Bouwjaar 1910;
- Voorzien van kunststof kozijnen met dubbele beglazing;
- Energielabel C;
- Verwarming en warm water middels Cv systeem;
- Grote vertrekken, 3 ruimte slaapkamers;
- Nette keuken en badkamer;
- Klassieke elementen zoals hoge omsmelten plafonds, paneeldeuren, ensuite en schouwen;
- Een deel van het terras aan de achterzijde kan gebruikt worden in overeenstemming met de beneden buren;
- 2/3 aandeel in VVE, de vereniging van eigenaren sparen naar aandeel € 150 per maand op eigen rekening;
- In de te sluiten koopakte zullen onder andere gezien het bouwjaar de ouderdom- en materialen clausule worden vastgelegd;
- Oplevering in gezamenlijk overleg;
- Notaris keuze is aan de kopende partij.

Is uw interesse gewekt? Dan maken wij met veel plezier een afspraak voor een bezichtiging. Uiteraard kunt u ook uw eigen aankoop makelaar inschakelen die opkomt voor uw belangen. Kijkt u voor contactgegevens van onze gewaardeerde collega aankoop makelaars op funda.nl.

Kenmerken