Beschrijving

Piekfijn topappartement op de zesde woonlaag van een bijzonder goed onderhouden complex, met 2/3 ruime slaapkamers, zonnige living, nette keuken en badkamer en een heerlijk zonnig balkon!

De ligging is zeer centraal. Op loopafstand bevindt zich het winkelcentrum aan de Prins Frederiklaan voor de dagelijkse boodschappen. In de directe omgeving zijn diverse scholen, sportvoorzieningen, het HMC Antoniushove, sportcentrum De Fluit, en het moderne winkelcentrum Westfield Mall of the Netherlands. Ook het gezellige oude centrum van Leidschendam en Voorburg zijn eenvoudig te bereiken. Dankzij de nabijgelegen uitvalswegen en het uitstekende openbaar vervoer zijn omliggende steden zoals Den Haag en Zoetermeer snel bereikbaar

Centrale entree op de begane grond, met brievenbussen en bellentableau, en toegang tot de trappen en lift en de bergingen.

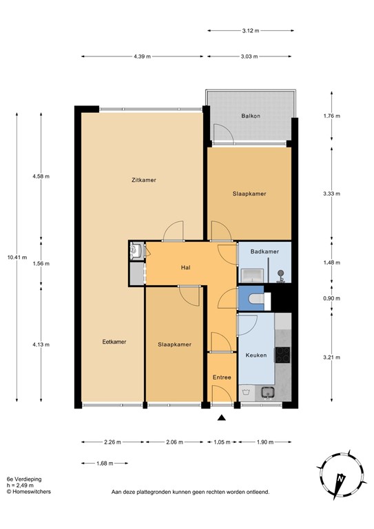
Prachtig uitzicht over het groene park Prinsenhof vanaf de galerij op de zesde verdieping. Achter de voordeur allereerst de vestibule, met daarachter de gang en hal. De woonkamer is groot en super licht door de grote raampartij. Afgewerkt met lichte vloerdelen en mooi gestucte muren. Doorloop naar de eetkamer aan de galerijzijde. Hier is vrij eenvoudig ook een derde slaapkamer te maken indien gewenst.

De grote slaapkamer heeft een toegangsdeur naar het ruime zonnige balkon op het Zuid Oosten. De tweede slaapkamer is naast de eetkamer aan de galerij gelegen, ideaal als gastenkamer of thuiswerkkamer. Nette keuken, uitgevoerd in rustige wit- en houttinten, met voldoende werk- en bergruimte en voorzien van kookplaat en afzuiging, koel vriescombinatie, afwasmachine en opstelplaats voor de wasmachine.

Luxe betegelde badkamer met ruime inloopdouche en een groot wastafelmeubel. Apart toilet bereikbaar vanuit de gang.

Kortom een zeer compleet, centraal gelegen appartement waar je zo naar toe verhuist, kom gezellig kijken, we maken met veel plezier een afspraak voor een bezichtiging met u.

Bijzonderheden;
- Gelegen op eigen grond.
- Op de bovenste etage, dus geen bovenburen.
- Rondom voorzien van houten kozijnen met dubbele beglazing.
- Energielabel D.
- Ruim balkon op Zuid Oosten.
- Woonkamer en grote slaapkamer voorzien van airconditioning.
- Super nette keuken voorzien van alle gemakken.
- Mooie badkamer met ruime inloop douche.
- Onderdeel van een erg actieve VvE met een maandelijkse bijdrage van € 277,76 hier zit tevens warm water bij in.
- Stookkosten op basis van individuele meters, € 110,- per maand.
- Gezien het bouwjaar zullen in de sluiten koopakte onder andere de ouderdoms- en materialenclausule worden opgenomen.
- Oplevering in onderling overleg.
- Notaris keuze is aan de kopende partij.

Heeft u interesse in dit leuke huis dan maken wij vanzelfsprekend graag een afspraak voor een bezichtiging met u. Uiteraard kunt u ook uw eigen aankoop makelaar inschakelen die opkomt voor uw belangen. Kijkt u voor contact gegevens van onze gewaardeerde collega makelaars op Funda.nl

Kenmerken