Beschrijving
Tussen het oude centrum van Voorburg en Rijswijk, in een charmante rustige woonstraat, is dit heerlijke beneden appartement gelegen. Met een ruime voortuin en zonnige achtertuin met vrij uitzicht, riante woonkamer met open keuken en 3 goede slaapkamers in de achterbouw.
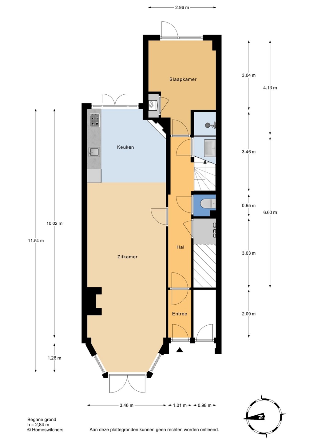
De voordeur te bereiken via het gezamenlijke pad, met daarnaast een eigen voortuin met handige fietsenberging. Tochtportaal en ruime gang, met trapkast, apart toilet, kleine badkamer met douche en wastafel.
De woonkamer is ruim, beschikt over een charmante erker aan de voorzijde met prachtige glas-in-lood bovenramen. Grote schouw met haard, mooie vloerdelen en doorloop naar de open keuken met gezellige bar. De keuken is voorzien van alle gemakken, kookplaat met afzuiging er boven, composiet aanrechtblad, spoelbak, oven en koelkast en vriezer. Vanuit de keuken middels openslaande deuren toegang tot de heerlijke tuin die aan de achterzijde grenst aan een park met speelgelegenheid. De tuin is gesitueerd op het oosten. Door de diepte heb je vrijwel de gehele dag een lekker zonnetje.
Vanuit de gang toegang tot de slaapkamer op de begane grond, in de achterbouw. Vanuit deze kamer een deur eveneens naar de achtertuin.
Op de eerste verdieping een kleine overloop met een deur naar de tweede ruime slaapkamer aan de achterzijde. Gezellig uitzicht over het groen, en heerlijk wakker worden met het ochtend zonnetje.
Op de tweede verdieping ook een overloop, met aparte kast met opstel plaats voor de wasmachine. Ruime zolder kamer, met wederom dat leuke uitzicht richting de Cromvliet.
Kortom een charmante benedenwoning met 3 ruime slaapkamers en 2 tuinen, op een fantastische locatie dicht bij de oude winkelstraten van Rijswijk en Voorburg. Ook het centrum van Den Haag bereik je eenvoudig met de fiets of openbaar vervoer. Toch voor werk of vrije tijd even de stad uit, het Rijkswegennet is vlakbij en bereik je met een paar auto minuten.
Bijzonderheden:
- Bouwjaar 1928
- Gelegen op eigen grond
- Rondom voorzien van houten kozijnen met deels dubbele beglazing
- De begane grond vloer is voorzien van Tonzon isolatie
- Fijne open keuken met gezellige bar gedeelte
- Twee grote tuinen op het Oosten en het Westen, de voortuin beschikt ook over handige fietsenberging
- Kleine maar nette badkamer op de begane grond
- 1/4e aandeel in de actieve vereniging van eigenaren, met begin 2026 een reserve van ca. € 27.000,-
- De maandelijkse bijdrage is € 75,- voor dit appartement
- Actieve meer jaren onderhoudsplanning en jaarlijkse vergadering
- Centrale locatie, rustige woonomgeving
- In de te sluiten koopakte zullen onder andere de ouderdom- en materialen clausule worden opgenomen
- Notaris keuze aan kopende partij
- Datum van levering in gezamenlijk overleg.
Heeft u interesse in dit gave huis dan maken we natuurlijk graag een afspraak voor een bezichtiging met u. Uiteraard kunt u ook uw eigen aankopend makelaar inschakelen die opkomt voor uw belangen. Kijkt u voor contact gegevens van onze leuke collega makelaars op Funda.nl.